Affittasi
FONTVIEILLE - Mercator - Uffici amministrativi
Mercator, Fontvieille, Monaco
Ufficio
900 Mq
rif HP-LM33
Descrizione
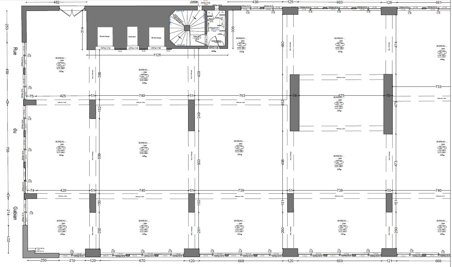
Situati nel cuore di Fontvieille, un quartiere dinamico e strategico, questi uffici occupano l’intero 3° piano di un moderno edificio di 12 piani.
Con una superficie operativa di 800 mq, dispongono inoltre di un’area di stoccaggio/archivio di 100 mq al piano interrato, garantendo un’organizzazione efficiente.
L’accessibilità è assicurata da un ascensore e due montacarichi, che permettono un collegamento diretto ai livelli inferiori. Sei posti auto all’interno dell’edificio completano l’offerta.
Disponibilità: Da concordare
Affito: €50.000 + IVA + spese
Specifiche
Ufficio nel quartiere :
FontvieilleUn vero capolavoro di ingegneria, il quartiere di Fontvieille è stato creato tra il 1966 e il 1973, guadagnando 33 ettari sul mare. Con i suoi edifici dinamici e la sua architettura neoprovenzale, Fontvieille incanta per il suo fascino unico. Il porto turistico, affiancato da ristoranti e bar, aggiunge ulteriore attrattiva, rendendo Fontvieille un luogo particolarmente piacevole da vivere. Tuttavia, Fontvieille non è solo un quartiere residenziale affascinante; è anche un vivace centro economico che ospita molte imprese. Ogni anno, accoglie eventi di fama internazionale come il Festival Internazionale del Circo.
Prendere contatti
Condividere







